Property Details
Residential Development Land with planning permission.
Guide Price – £1,000,000.
9 Units
SITUATION
A rare and unique residential development opportunity in the heart of Carterton. It is the second largest town in West Oxfordshire and is 2 miles south of the A40 road and 4 miles southwest of Witney. The town centre, which is within walking distance, provides numerous facilities including schools, shops and public houses. More extensive facilities are available in the city of Oxford.
THE PROPERTY
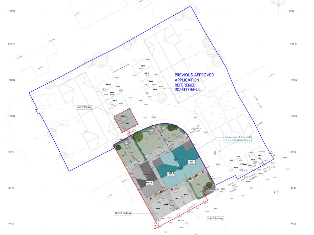
The property is an “in fill” site and extends in all to about 0.51 acre. It comprises a detached house constructed of part stone and part red brick under a pitched slate roof. The house is set in a large plot surrounded by existing housing. The property has good road frontage and access onto Arkell Avenue.
PLANNING CONSENT
The site is subject to two planning consents:
• Detailed planning permission was granted on 16th February, 2021 for the erection of 6 dwellings comprising four 2-bedroom bungalows and two, 2-bedroom dwellings.
• Detailed planning permission was granted on 15th November, 2021 (Ref: 21/02587/FUL) for the refurbishment and conversion of an existing dwelling into two properties and the erection of a further detached dwelling together with associated works.
There is no Community Infrastructure Levy charges or Section 106 contributions associated with the planning consents.




INFORMATION PACK
Further information is available from the Selling Agents including searches and a legal pack. Please contact Anthony Wright on 01666 318 992 or anthony@ajwlanddevelopment.co.uk for further information.
METHOD OF SALE
Prospective buyers are invited to submit offers to AJW Land & Development Ltd by 12 Noon on Wednesday 9th March, 2022. Written offers should be submitted in a sealed envelope and sent to AJW Land & Development Ltd, Old Barn, Rodbourne Rail Farm, Rodbourne, Malmesbury, Wiltshire SN16 0ES and titled “For the attention of Mr. A.J. Wright – Fairseat, Arkell Avenue, Carterton”. Emailed offers should be sent to anthony@ajwlanddevelopment.co.uk. All offers should contain a breakdown of all assumptions made and any abnormal costs that have been allowed for.
INTERVIEWS
To avoid any delay, if your offer is of interest, you will be invited to attend a meeting at AJW Land & Development Ltd.’s office (Covid-19 regulations permitting) on Friday 11th March, 2022 (time to be agreed), to discuss your proposal.
SERVICES
Mains services are understood to be located adjacent to the site. This includes gas, water, electricity and mains drainage. Prospective purchasers are required to seek confirmation from the various utility companies that mains services are readily available.
RIGHTS AND EASEMENTS
The property is sold subject to any existing rights of way, drainage, water and other rights, easements and incidents of tenure affecting the sale and all easements and wayleaves in connection with all electric or telephone wires, pipes, cables, stays etc. as at present erected on or passing over the property and subject to all existing and all pending agreement if any affecting the same.
TENURE AND POSSESSION
The property is freehold with vacant possession.
LOCAL AUTHORITY
West Oxfordshire District Council, Elmfield, New Yatt Road, Witney, Oxfordshire OX28 1PB. Tel: 01993 861020.
VAT
VAT will not be charged on the sale price of the property.
SELLER’S SOLICITOR
Harrison Clark Rickerby Solicitors, Ellenborough House, Wellington Street, Cheltenham GL50 1YD. Tel: 01242 224422.
VIEWING
By appointment through the Selling Agents (01666 318992).

