Property Details
Guide Price £125,000
Blunsdon, Swindon
LOCATION
The property is situated on Blunsdon Hill, immediately to the North of West Swindon, 4 miles from Swindon centre, which provides a wide range of day to day shopping and other facilities. Swindon railway station provides regular services, with the journey to London (Paddington) taking just over 1 hour.
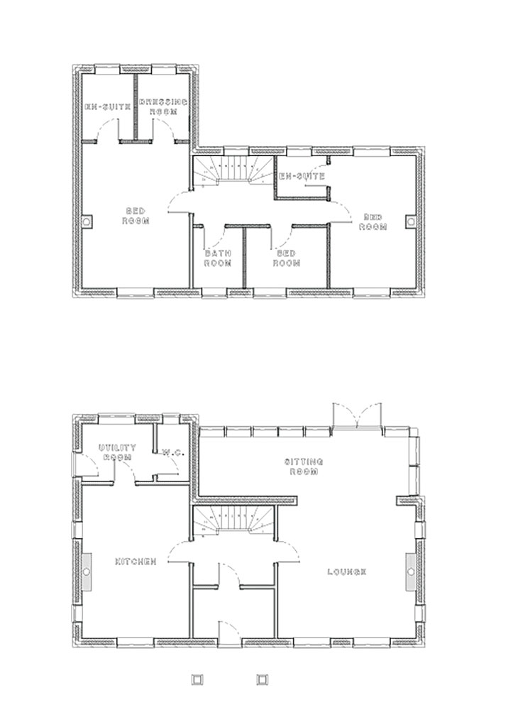
THE PROPERTY
An attractive rural building plot situated in an elevated position with open views. The property comprises an existing red brick detached dwelling which has planning consent to be demolished and replaced with a new 3 bedroom detached dwelling with a bathroom and two en-suites. The gross internal area of the replacement dwelling is 186.96m2 (2,012 sq. Ft.) including the garage. The plot includes a large garden and raised patio area. The house is approached over a private driveway from the top of Blunsdon Hill where there are extensive views. The property extends in all to about 0.27 acre (0.11 hectare).
PLANNING CONSENT
Detailed planning permission was granted by Swindon Borough Council on 25th June, 2025 (ref: S/24/0342) for the erection of a new dwelling (replacement).
METHOD OF SALE
Prospective buyers are invited to submit offers to AJW Land & Development Ltd by 12 Noon on Wednesday 24th September, 2025. Written offers should be submitted in a sealed envelope and sent to AJW Land & Development Ltd, Old Barn, Rodbourne Rail Farm, Rodbourne, Malmesbury, Wiltshire SN16 0ES and titled “For the attention of Mr. A.J. Wright – No. 4 Grove Cottages, Blunsdon”. Emailed offers should be sent to: anthony@ajwlanddevelopment.co.uk.
COMMUNITY INFRASTRUCTURE LEVY
The buyer will be responsible for any Community Infrastructure Levy (CIL) charged.





OUTGOINGS
No.4 Grove Cottages is currently registered in Band “D” for the Council Tax. (Charges 2025/ 2026 are £2,252.96).
VIEWING
Strictly by prior appointment through the Selling Agents (01666 318 992).
TENURE AND POSSESSION
The property is freehold with vacant possession on completion. A right of access will be granted over the private driveway.
DIRECTIONS
On leaving Blunsdon St Andrew, shortly before a sharp left hand bend, the property will be found signposted on the right hand side.
What3words ///cubic.nerve.interlude
SERVICES
The existing property due to be demolished is currently connected to mains water from a sub meter supply, mains electric and a private drainage system.
LOCAL AUTHORITY
The existing property due to be demolished is currently connected to mains water from a sub meter supply, mains electric and a private drainage system.
